ZAPYTANIE OFERTOWE pn.„Adaptacja budynku na potrzebę zorganizowania magazynu OLiOC”.
pn. „Adaptacja budynku na potrzebę zorganizowania magazynu OLiOC”.
Załączniki:
- Zapytanie ofertowe .pdf 608,59 KB
- Załącznik nr 2 – Formularz ofertowy .doc 44,00 KB
- Załącznik nr 2 – Formularz ofertowy .pdf 503,70 KB
- Załącznik nr 3 projekt umowy (3) .pdf 477,69 KB
- Załącznik nr 3 projekt umowy (3) .docx 44,61 KB
- Załącznik nr 1 do OPZ .zip 4,41 MB
- SST stolarka okienna .doc 59,00 KB
- SST sufit podwieszany .doc 47,00 KB
- Elewacje .png 46,67 KB
- Kosztorys ofertowy .ods 9,14 KB
- Opis przedmiotu zamówienia .doc 42,50 KB
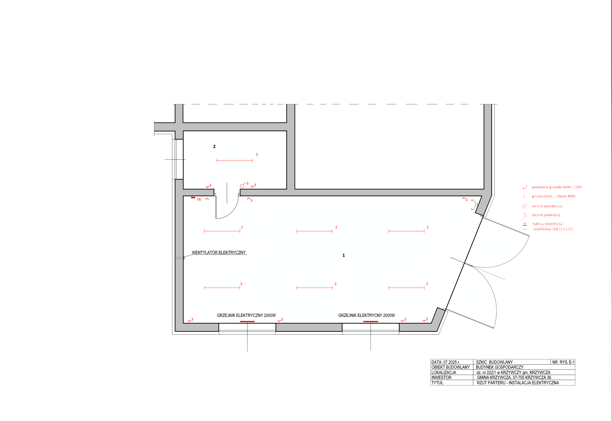
- Parter – instalacja elektryczna .png 75,56 KB
- Przedmiar .pdf 197,97 KB
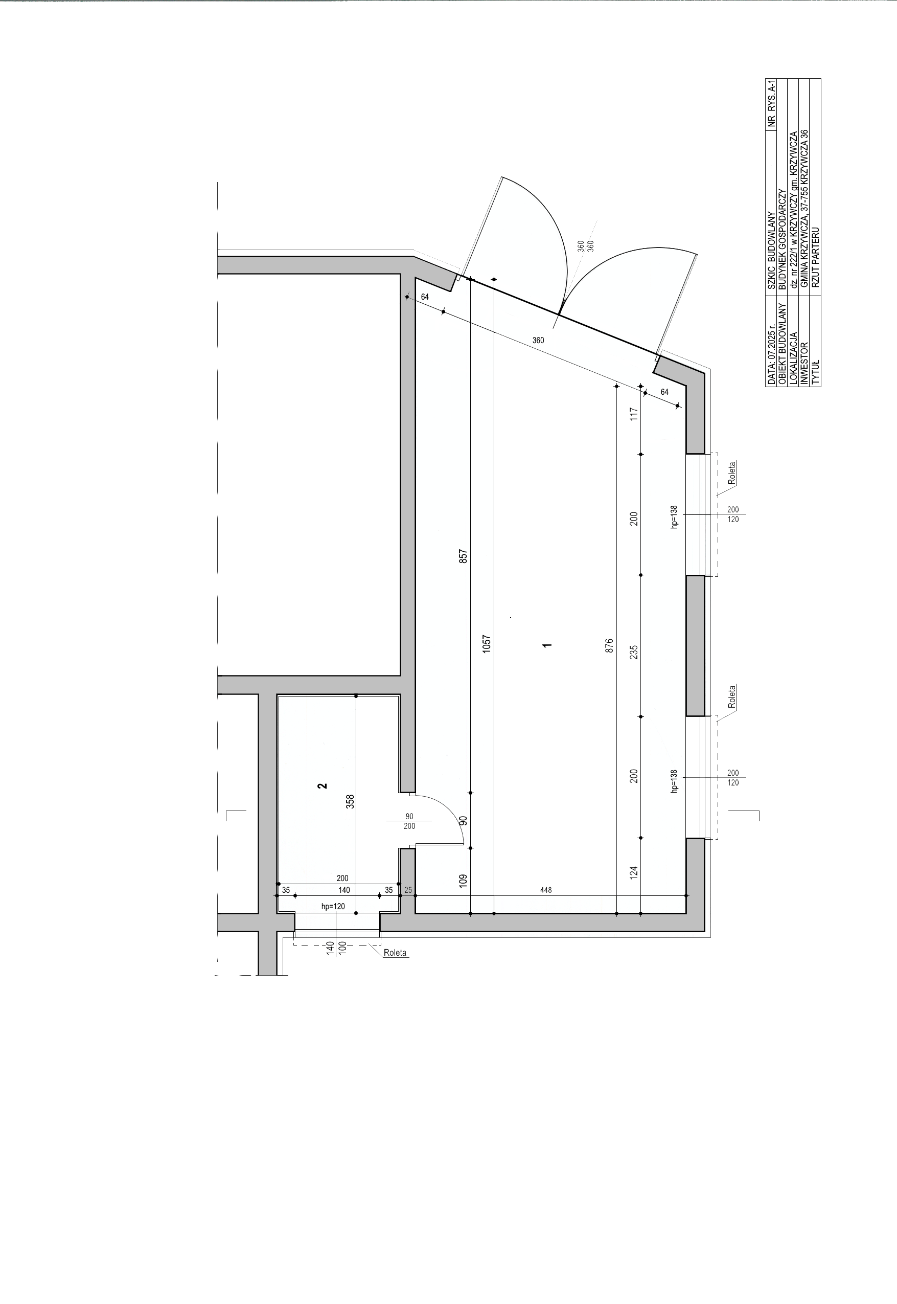
- Rzut parteru .png 110,00 KB
- SST instalacja elektryczna .doc 81,00 KB
- SST roboty malarskie .doc 82,50 KB
- Przekroj .jpg 94,12 KB
- sst posadzka przemysłowa .docx 28,53 KB
- OST wymwgania ogolne .docx 57,45 KB
- Wykaz stolarki .jpeg 88,60 KB
- ZO-250930-Informacja z otwarcia ofert .pdf 124,13 KB
- ZO-250930-Zawiadomienie o unieważnieniu postępowania .pdf 98,06 KB
Metryka
Opublikowane przez Leszek Bobek w dniu 22 września 2025, 14:28
Zmodyfikowane przez Leszek Bobek w dniu 30 września 2025, 13:17
- Leszek Bobek
- Data publikacji:
- Godzina publikacji:
- Data modyfikacji: 30-09-2025
- Czas modifikacji:13:17